中文版
English
首页
公司简介
作品案例
工作理念
公司团队
联系方式
商场项目
办公项目
酒店项目
厂房项目
卖场项目
家装项目
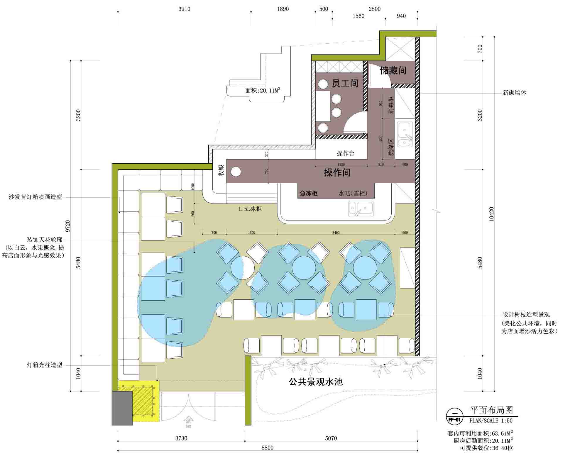
项目名称:星奇异
广州天河潮流天地购物中心
安盛天平财产保险股份公司
助力计划广东实施办公室
广东颐年医疗科技(集团)有限公司
远雄国际商务中心
美国愉富服装公司
广业投资公司
思达教育 ISTUDY
亚洲铝业集团
梅花园商业广场
天河几米几何专卖店
万创顺
耀中广场4305单元
北通电子
大都会3313单元
广州市工业园办公室装修工程
广州浩福健身器材有限公司
九阳专卖店-维多利
三水广场
大昌音响
信息研究公司
颐和上院A2-903
东莞扬宅
美亚厨具--番禺新大新美亚专柜
美亚厨具--北京燕莎商场专柜
美亚厨具--广州北京路专卖店
美亚厨具--三水新大新专柜
美亚厨具--重庆美亚专柜
中石化222铺巧虎专卖店
GGI意大利pizza店
魔幻厨房
酒店西餐部
高要明珠苑
星奇异
沙和路红酒咖啡餐厅
上海泰富广场商业中心
杭州利群大厦夜总会
北京-名店運動城
汇利达国际货运广州有限公司
经城投资咨询
深圳运动场
北通电子有限公司
广州市沙和路城启大厦23层
盛林担保